10 Coulter Street Jamestown

$6,999,000
4 7.5 6,000 sq ft

The Property

“Bridge View” – Welcome to 10 Coulter Street, a stunning, single-family residence completed in 2022 is nestled on the picturesque waterfront coast of Jamestown, RI. This impressive estate spans 6,000 square feet, offering luxurious waterfront living with breathtaking 180-degree views of Newport Harbor and the Newport and Mount Hope bridges from every room.

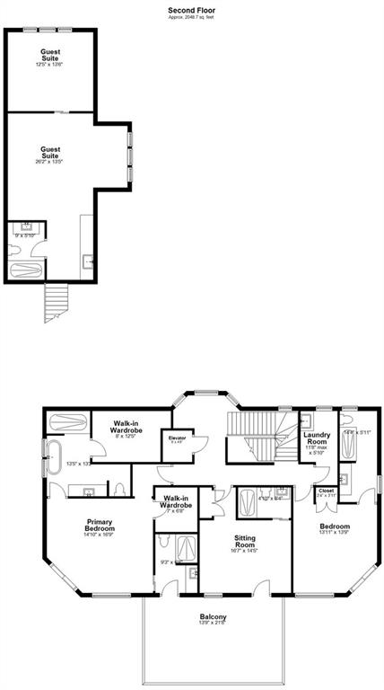
Upon entering, you’ll find six spacious ensuite bedrooms and seven and a half elegantly designed bathrooms, ensuring privacy and convenience. The home is filled with natural light, showcasing the spectacular southeastern, northeastern, and eastern water views.

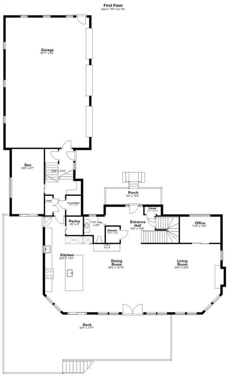
The home’s uniqueness begins with a mahogany front door leading to an open-concept living room featuring 10-foot ceilings and floor-to-ceiling windows. A chef’s kitchen, a true culinary enthusiast’s dream, includes a cooktop, large oven, gas stove, stainless steel appliances, double wall steam ovens, a refrigerator, wine and beverage cooler, double galley-sinks, and dual dishwashers, providing a seamless cooking experience. The dining area is completed by a full bar, perfect for large gatherings with seating for 10.

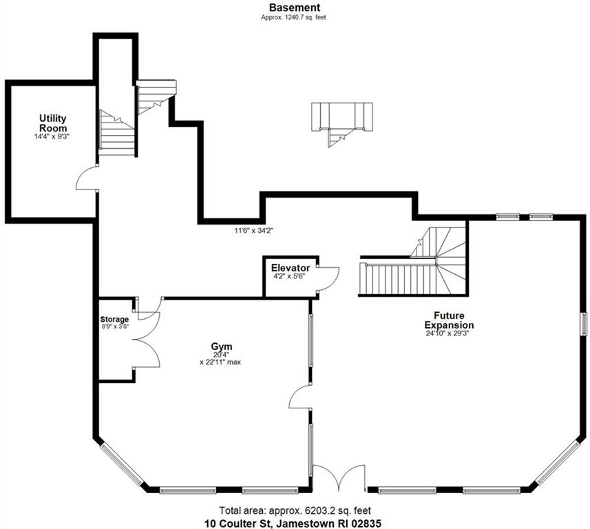
This thoughtfully designed home includes ten rooms, featuring a private and versatile living area with a full bathroom in the carriage house and a separate side entrance above the garage, ideal for an au pair or household member seeking privacy. An elevator provides easy access from the lower level to all floors except the third. The full basement offers a private gym, 9-foot ceilings with tall windows displaying waterfront views, a future recreation media room, and abundant storage, offering endless customization potential. The master bedroom boasts a Juliette balcony overlooking the Newport Bridge and includes his and hers separate bathrooms and walk-in closets.

Outside, the property features designer landscaping and is fully gated, with a massive first-floor deck with drop-down screens and a large second-floor deck, perfect for entertaining and relaxation. The home is conveniently located minutes from Newport, Narragansett, and numerous world-class beaches.

The property’s edge features wooden stairs leading to the ocean for an afternoon swim or to your boat moored nearby. High-efficiency electric heat pump heating and central AC ensure year-round comfort, while a whole-house generator provides peace of mind in any season. Every detail in this meticulously maintained residence has been carefully considered.

This home seamlessly blends sophistication with practicality, offering rare, new waterfront construction and making it a true gem in Jamestown. Don’t miss your opportunity to call 10 Coulter Street your new home. Contact us today to schedule a viewing and experience the exceptional lifestyle awaiting you.

 

Read more

Contact Associate

Listing Details

MLS Number

1381925

Lot Size:

0.69 acres

Features

  • Basement: Full, Walkout, Partially Finished, Playroom, Storage Space, Utility, Workout Room
  • Bus
  • Commuter Bus
  • Golf
  • Highway Access
  • Marina
  • Public School
  • Recreational Facilities
  • Restaurants
  • Schools
  • Shopping
  • Near Swimming
  • Tennis
  • Deck
  • Patio
  • Porch
  • Screened Pch/Patio/Dck/Brzwy
  • Fireplace: Gas, Stone
  • Heating: Electric, Heat Pump, Humidity Control, Individual Control, Radiant, Zoned
  • Heating Fuel: Electric, Heat Pump, Humidity Control, Individual Control, Radiant, Zoned
  • Garage: 1
  • Corner Lot
  • Fenced
  • Paved Driveway
  • Security
  • Sprinklers
  • Underground Utilities
  • Type: Colonial
  • Year Built: 2020
  • Water Amenities: Waterfront, Access, Beach, Flood Insurance, Mooring, Saltwater Front, Saltwater View, Walk to Salt Water

See more features

Lila Loves

Jamestown

Seaside town

Meet Your Associate

Similar Listings

Exclusively From Us To You

We invite you to join our exquisite collection of properties, latest news and events.

Thank you for subscribing!