92 Pleasant Street Pawtucket

$555,000
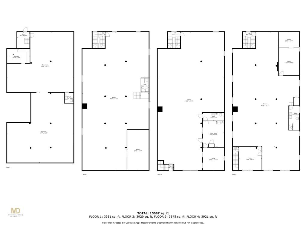
17,040 sq ft

The Property

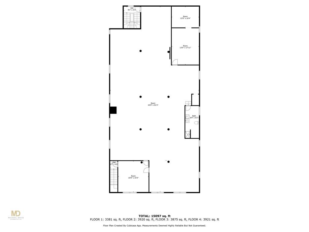
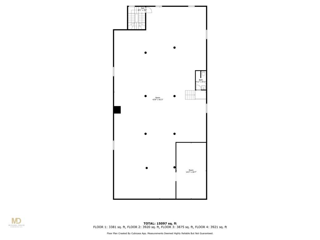
Introducing the WM K Toole Building. Unlock the potential of this sprawling 4-story commercial building, offering over 17,000 square feet of versatile space across two expansive lots with frontage on both Pleasant St. and Taft St. Steps from the new soccer stadium and with maximum visibility from the highway, this property is ideal for development, owner-occupancy, or a combination of both.

The building features over 4,000 sqf per floor, a brand new fire alarm, and two overhead doors for convenient access and ample parking. With its exceptional visibility and generous space, this property presents a prime opportunity to establish or expand your business.

Read more

Contact Associate

Listing Details

MLS Number

1381889

Lot Size:

0.31 acres

Features

  • Basement: Full
  • Garage
  • Bus
  • Commuter Bus
  • Golf
  • Highway Access
  • Hospital
  • Interstate
  • Private School
  • Public School
  • Railroad
  • Recreational Facilities
  • Restaurants
  • Schools
  • Shopping
  • Near Swimming
  • Tennis
  • Heating: Forced Air
  • Heating Fuel: Forced Air
  • Downtown
  • Year Built: 1917

See more features

Meet Your Associate

Similar Listings

Exclusively From Us To You

We invite you to join our exquisite collection of properties, latest news and events.

Thank you for subscribing!